ateliers jean nouvel

bank
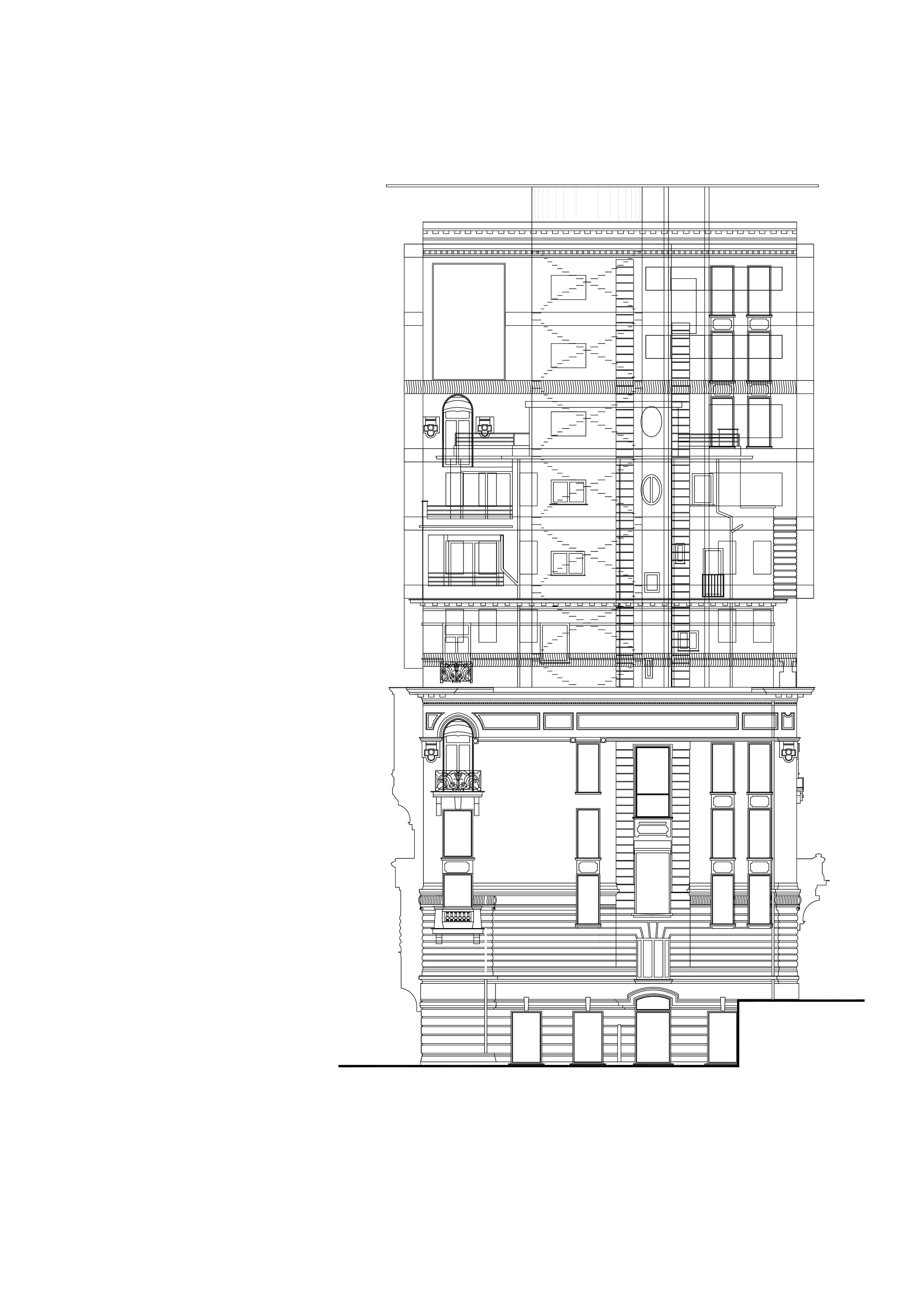
monaco france

bank monaco

No items found.
No items found.
No items found.
Position
Junior Architect
Collaboration
Tasks
perspectives | floor plans drawing | section drawing | 3d model building | architectural intentions | diagrams | facade studies | facades conception and drawing
Skills
autocad | indesign
Date
2016
Phase
Competition
Surface
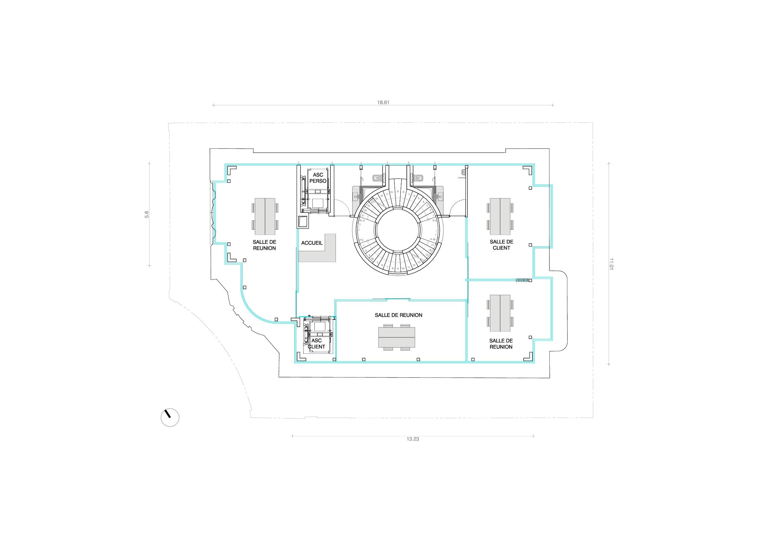
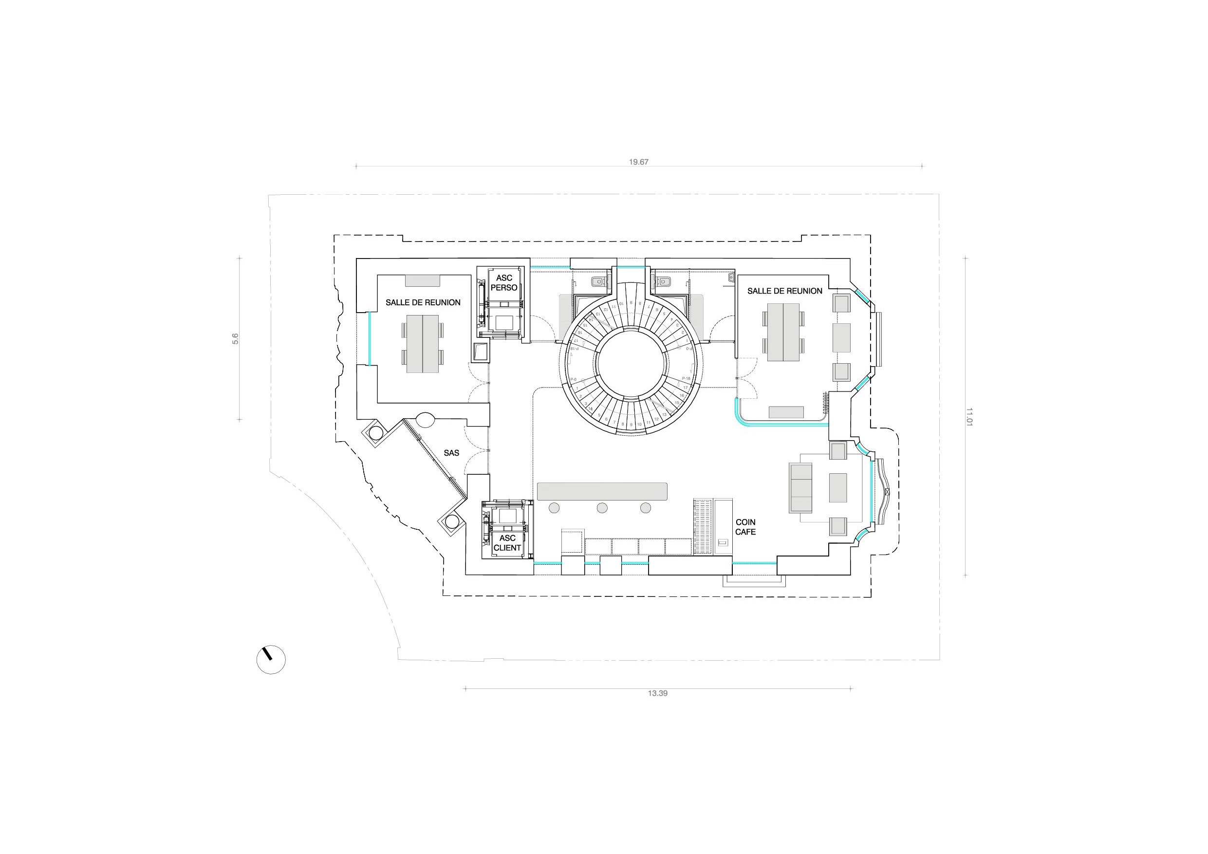
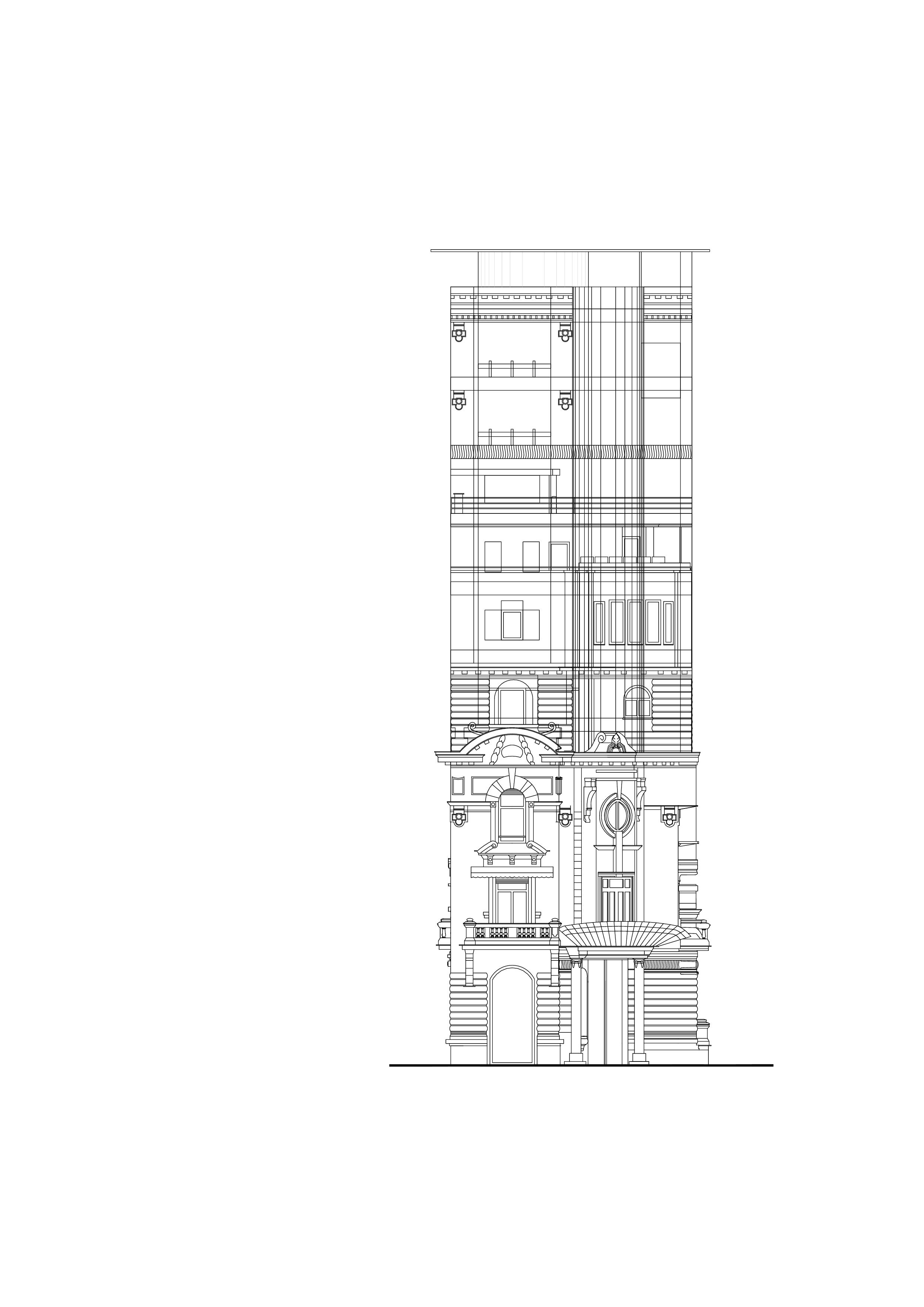
2478 m² | 12 levels
Client
Collaborating firms
Link to studio websiteLink to press

About me